產品展示

全國統一服務熱線
135 1830 6292
199 8199 2289
188 8046 6251
132 8135 3888
地址:成都成華區融錦城3棟1102 ??? 綿陽經開區萬達CBD-310
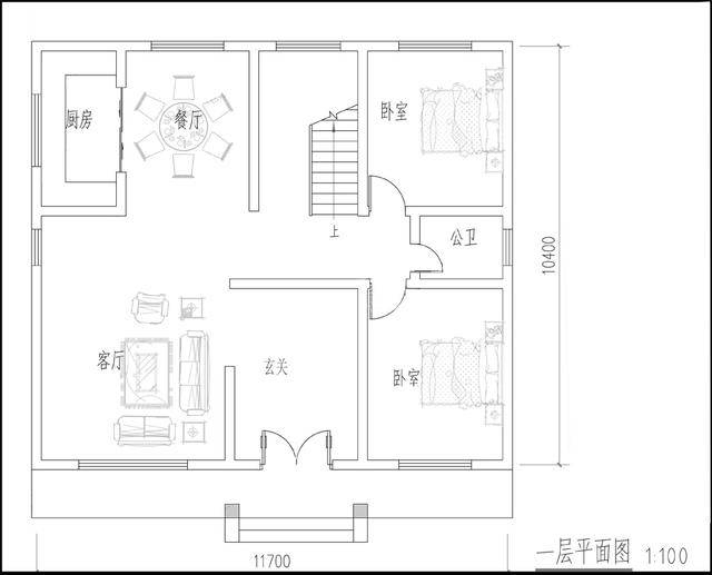
四川輕鋼別墅-中式現代
日期:2018-10-10
四川樂山輕鋼別墅,現代版本風格,帶有露臺的輕鋼別墅



該套修建在綿陽的輕鋼別墅,共計6個臥室

四川居久家輕鋼別墅 在綿陽地區修建的別墅風格 多種多樣,來到這邊就可以看到各種心怡的樣板房。
上一篇:四川輕鋼別墅-綿陽美式簡約 下一篇:綿陽輕鋼別墅--簡約鄉村別墅




