一層平面圖

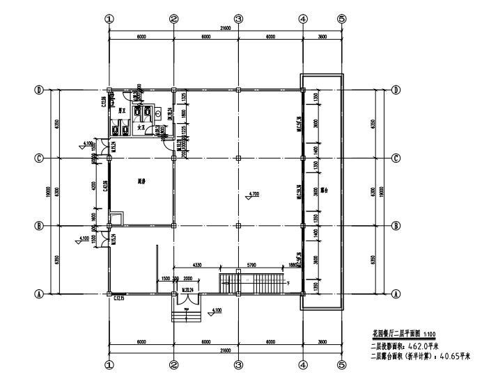
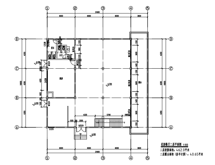
二層平面圖

效果圖草圖






您現在所在位置: 四川居久家輕鋼別墅有限責任公司 > 成功案例 >

全國統一服務熱線
135 1830 6292
199 8199 2289
188 8046 6251
132 8135 3888
地址:成都成華區融錦城3棟1102 ??? 綿陽經開區萬達CBD-310
日期:2018-05-24