產品展示

全國統一服務熱線
135 1830 6292
199 8199 2289
188 8046 6251
132 8135 3888
地址:成都成華區融錦城3棟1102 ??? 綿陽經開區萬達CBD-310
四川輕鋼別墅--歐式典雅
日期:2018-10-22

此四川輕鋼別墅采用歐式典雅風格,外墻由淺金和白色搭配深色坡屋頂,彰顯了典雅與奢華,精致的弧形凸出式門廊搭配尖頂八角窗,又賦予了這棟四川輕鋼別墅別樣的美感,仿若一個小小的城堡,越看越有味道。


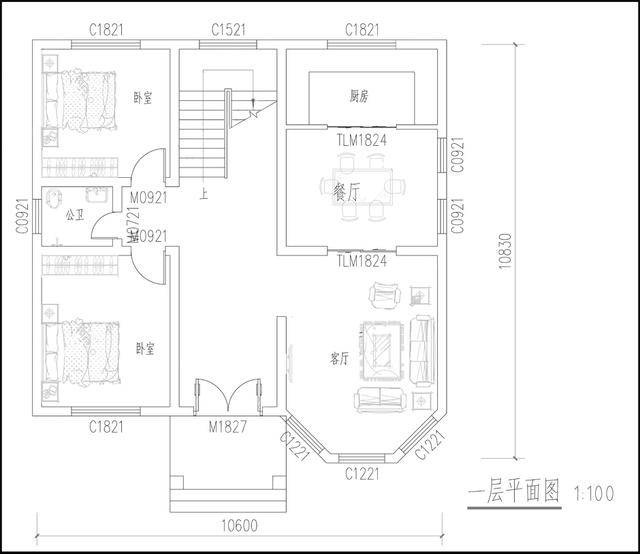
此四川輕鋼別墅的戶型設計合理,二層設計巧妙,空間利用率高,適合一大家人一同居住。
四川居久家輕鋼別墅,對每一棟別墅的設計及施工都要求精益求精,盡量的利用空間,滿足客戶需求。
上一篇:綿陽輕鋼別墅--簡約鄉村別墅 下一篇:四川輕鋼別墅--美式簡約




