產品展示

全國統一服務熱線
135 1830 6292
199 8199 2289
188 8046 6251
132 8135 3888
地址:成都成華區融錦城3棟1102 ??? 綿陽經開區萬達CBD-310
四川輕鋼別墅--美式簡約
日期:2018-10-22

這款四川輕鋼別墅采用棕色文化石外墻裝飾,遠遠看去就能吸引眼球,顯得非常的時尚前衛,米黃色的腰線和屋檐吊頂設計搭配白色窗框,勾勒出別墅的整體線條,簡約而不簡單。

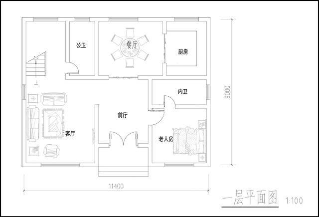
此四川輕鋼別墅的客戶是為家中老人居住修建的,考慮老人上下樓不方面,在一樓設計一間帶內衛生間的老人房。其他功能區域利用空間常規設計。

二樓應客戶要求僅設計兩個臥室,留了一個大露臺,方便客戶閑時享受美好的鄉村時光。
客戶第一是四川居久家輕鋼別墅的服務宗旨,在保證結構安全的同時盡量滿足客戶的設計功能需要,讓每一位客戶修得放心,住得舒心。
上一篇:四川輕鋼別墅--歐式典雅 下一篇:四川輕鋼別墅--美式鄉村




